本項服務是根據客戶現有盆齒類、齒圈類等零件淬火壓床的運行狀況以及升級改造要求,對壓床各部分進行清洗、修復、改造。升級改造內容包括但不限于以下幾項。
1.主機
對主機進行拆分、清洗,對各零件進行檢測,對破損零件加工、更換。包括工作臺平面度修復,中心油缸、內環油缸、外環油缸修復,活塞桿修復等。
2.電氣控制系統
修復后整個淬火過程的動作由PLC可編程控制器自動控制,增加了觸摸屏,使得參數設置更為便捷,工作狀態和故障可直觀顯示,采用懸臂控制箱,可以進行多位置多點操作。淬火油流量改成數控變頻控制,具備超過50份以上壓淬淬火工藝的存儲和調用。增設淬火油油溫檢測控制系統,具備淬火油的油溫顯示功能以及油溫超高、低溫報警功能。
3.液壓系統
修復后將液壓系統所有密封件更換為進口密封件(包括泵站及油缸等),質量更加可靠,使用壽命更長,確保液壓系統3年以上時間不滲漏液壓油。
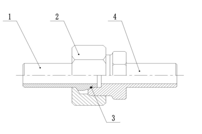
液壓系統的所有硬管管路接頭選用高品質24°錐密封接頭(接頭結構見附圖1)。該型式的接頭經過我公司多臺設備的現場使用驗證,在沖擊和震動頻繁的工況下仍有著良好的密封性能。

1.焊接接管 2.螺母 3.O型密封圈 4.接頭體
附圖1
在液壓站上加裝液壓油冷卻器,形成一個液壓油的獨立冷卻回路。液壓油冷卻器對液壓油的冷卻效果要遠遠高于風冷機,可以將液壓油的溫度穩定在最適宜的工作溫度,使液壓系統能夠提供穩定的壓力輸出并延長液壓管路和密封件的使用壽命。
4.冷卻系統
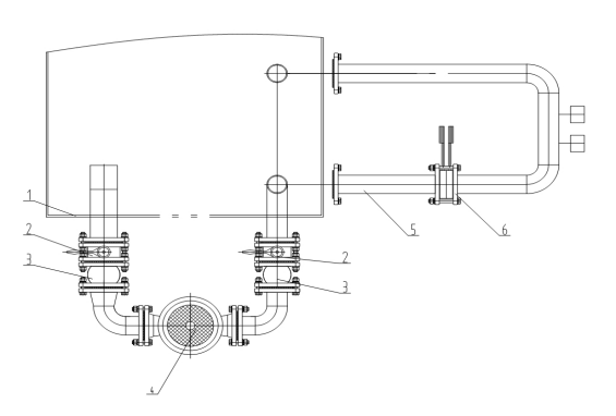
改造后會將冷卻泵移至機體外部后側,對泵的維修和更換非常便利。
通過變頻控制和流量積算達到對淬火油流量的精確控制,可以滿足不同大小的零件對流量的要求。
冷卻管路改造后將原有的3種通徑的組合管路改為一條大通徑管路,避免了雜物進入管路對管路造成堵塞的可能。(冷卻系統見附圖2)

1.主機下箱體 2.蝶閥 3.軟連接 4.冷卻泵 5.冷卻管路 6.流量計
附圖2
